Thi Công Nhà Phố 3 Tầng 80m2 Đẹp Chỉ Với 1,2 Tỷ
Khá nổi bật với gam màu sáng tinh tế nhẹ nhàng khiến mặt tiền ngôi nhà mang nét trẻ trung. Ngôi nhà được KTS sử dụng kính cường lực giúp lấy sáng và tăng thêm phần sang trọng.
Giếng trời, khoảng thông tầng được bố trí khéo léo để không khí được đối lưu, thông thoáng hơn.
Nhà phố 3 tầng 80m2 thiết kế đẹp
Kinh phí thi công và hoàn thiện nội thất cho ngôi nhà phố 3 tầng 80m2 này được dự tính vào khoảng 1,2 tỷ đồng.
Yêu cầu thực tế từ gia chủ khi xây dựng nhà phố 3 tầng 80m2 bao gồm các không gian:
- Sân sau, sân trước, sân thượng, giếng trời, khoảng thông tầng
- Phòng ăn, bếp
- Phòng khách
- Phòng ngủ bố mẹ
- Phòng sinh hoạt chung
- Hai phòng ngủ cho hai con
- Phòng thờ
Bản vẽ thiết kế mặt bằng tầng 1 nhà phố 80m2
Mặt bằng tầng 1 nhà phố 3 tầng 80m2.
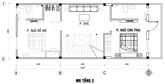
Bản vẽ thiết kế mặt bằng tầng 2 nhà phố 80m2
Mặt bằng tầng 2 nhà phố 80m2.
Bản vẽ thiết kế mặt bằng tầng 3 nhà phố 80m2
Mặt bằng tầng 3 nhà phố 80m2.
Mặt bằng tầng mái nhà phố 3 tầng hiện đại.
Tầng 1 nhà phố 80m2 đẹp
Đây là mẫu nhà phố hiện đại được nhiều gia đình trẻ lựa chọn, vì thế KTS đã thiết kế tầng 1 với không gian khá ấm cúng và sang trọng. Nhằm mục đích mang đến không khí trang nhã cho ngôi nhà khi gia chủ có dịp đón tiếp khách khứa bạn bè đến thăm.
Không gian phòng khách được bài trí tinh tế.
Bạn có thể thấy sự tinh tế của gia chủ qua cách bài trí nội thất phòng khách với bàn kính tròn, ghế sofa có cùng tông màu với màu sơn tường. Để căn phòng có thêm sinh khí, tránh sự nhàm chán, những chiếc gối tựa lưng nhiều màu sắc cùng tranh treo tường trở thành điểm nhấn giúp không gian thêm nổi bật.
Bếp ăn và phòng khách kết hợp với diện tích khá rộng rãi, cùng với đó là đồ nội thất được gia chủ lựa chọn kỹ càng, tiện dụng trong sinh hoạt.
Bức vách ngăn với họa tiết đơn giản được thêm vào để phân chia không gian các khu vực.
Để hoàn thiện tính mỹ quan cho tầng một ngôi nhà phố, bức vách ngăn trắng với họa tiết đơn giản được thêm vào để phân chia không gian các khu vực, kết hợp cầu thang đúc cùng tay vịn bằng kính toát lên vẻ đẹp sang trọng.
Mảng tường màu xanh biển làm tăng thêm nét duyên dáng thêm cho không gian bếp. Cửa sổ được thiết kế để đảm bảo thông thoáng, thêm cửa ra vào lắp kính cho ánh sáng tự nhiên tràn ngập, và giúp không khí được lưu thống, tránh ám mùi thức ăn vào ngôi nhà.
Mảng tường màu xanh biển làm duyên dáng thêm cho không gian nấu nướng.
Ngoài ra, sân trước và sân sau thông thoáng, chủ nhà có thể trồng hoa, chưng cây cảnh để tăng thêm thẩm mỹ cho toàn bộ không gian nhà phố.
Tầng 2 nhà phố 80m2 đẹp
Toàn bộ tầng hai của ngôi nhà phố 80m2 được dành để làm không gian nghỉ ngơi, riêng tư cho gia đình. KTS đã thiết kế phòng ngủ master của bố mẹ, phòng ngủ cho con trai cùng với phòng vệ sinh riêng để các thành viên gia đình được thoải mái trong sinh hoạt hàng ngày.
Phòng ngủ của bố được cách điệu cùng mảng tường đầu giường sơn tím.
Phòng ngủ của bố mẹ được cách điệu cùng mảng tường đầu giường sơn tím, điều này giúp thổi bừng sức sống cho căn phòng, cũng như tạo sự lãng mạn cho không gian riêng của hai vợ chồng.
Phòng tắm được KTS lựa chọn gam màu kem chủ đạo, lắp thêm kính tạo nên sự thoáng đãng và sạch sẽ cho không gian.
Phòng tắm được KTS lựa chọn gam màu kem chủ đạo.
Vì là phòng ngủ dành cho con trai, nên gia chủ đã thể hiện sự tinh nghịch thông qua màu sắc, cách bài trí các bức tranh trên tường đầu giường đủ để biến không gian riêng tư của bé trở nên năng động.
Sắc xanh của không gian phù hợp với bé trai.
Bên cạnh đó, phòng sinh hoạt chung của gia đình được bố trí ở giữa, kết hợp với giếng trời, giúp gia đình có những giây phút sum họp cùng nhau. Màu trắng chủ đạo giúp không gian phòng sinh hoạt chung thêm sáng hơn.
Phòng sinh hoạt chung được xem như phòng khách thứ 2 của gia đình.
Tầng 3 nhà phố 3 tầng 80m2
Riêng tầng 3, gia chủ đã cho bố trí phòng ngủ dành cho con gái, cùng phòng thờ và khoảng sân thượng rộng thoáng để trồng cây, làm nơi thư giãn thoải mái.
Cũng giống như hai phòng ngủ còn lại, phòng ngủ của con gái cũng được KTS thiết kế phòng vệ sinh riêng để chủ nhân căn phòng có thể sự riêng tư, thuận tiện trong sinh hoạt hàng ngày.
Phòng ngủ của bé gái với màu xanh lá cây và họa tiết hoạt hình ngộ nghĩnh.
Phòng ngủ của bé gái với màu xanh lá cây và họa tiết hoạt hình ngộ nghĩnh trên chăn, ga, gối. Hệ tủ lưu trữ được bố trí cùng góc học tập ngay đầu giường đầy tiện lợi cho bé.
Phòng tắm đầy đủ tiện nghi.
Phòng thờ với nội thất gỗ đơn giản mà sang trọng, để tăng thêm sự trang trọng và phù hợp với phong thủy, gia chủ đã bố trí thêm tranh tứ quý đào cúc trúc mai.
Phòng thờ với nội nội thất bằng gỗ sang trọng.
Sân thượng được thiết kế như một công viên thu nhỏ với nhiều loại cây trồng được chủ nhà chăm chút từng tí một.
Sân thượng được thiết kế như một công viên thu nhỏ với nhiều loại cây.
Mỗi một mẫu nhà phố lại có những thiết kế và vẻ đẹp khác nhau tùy theo nhu cầu của từng gia chủ. Nếu bạn vẫn chưa biết chọn thiết kế nào phù hợp để thi công hoặc chi tiết hơn về các mẫu nhà phố 3 tầng với diện tích 80m2 có không gian đẹp, đầy tiện nghi cho gia đình.
Batecons là đơn vị chuyên Tư vấn - Thiết kế - Thi công xây dựng trọn gói
Mọi chi tiết xin vui lòng liên hệ:
CÔNG TY CỔ PHẦN XÂY DỰNG BATE
Địa chỉ: Tầng 4, tòa nhà ECOCITY, 3A Nguyễn Trãi, Phường Quán Bàu, Thành phố Vinh, Tỉnh Nghệ An
Điện Thoại: 0378 274 274
Email: Batecons.vn@gmail.com

















Xem thêm